579 57 00 00 | info@maza.ge | GEO ENG

გამოგვიგზავნეთ თქვენი
მონაცემები

ან დაგვირეკეთ

+995 579 57 00 00
სართული 29 / ბინა 355
3D
2D
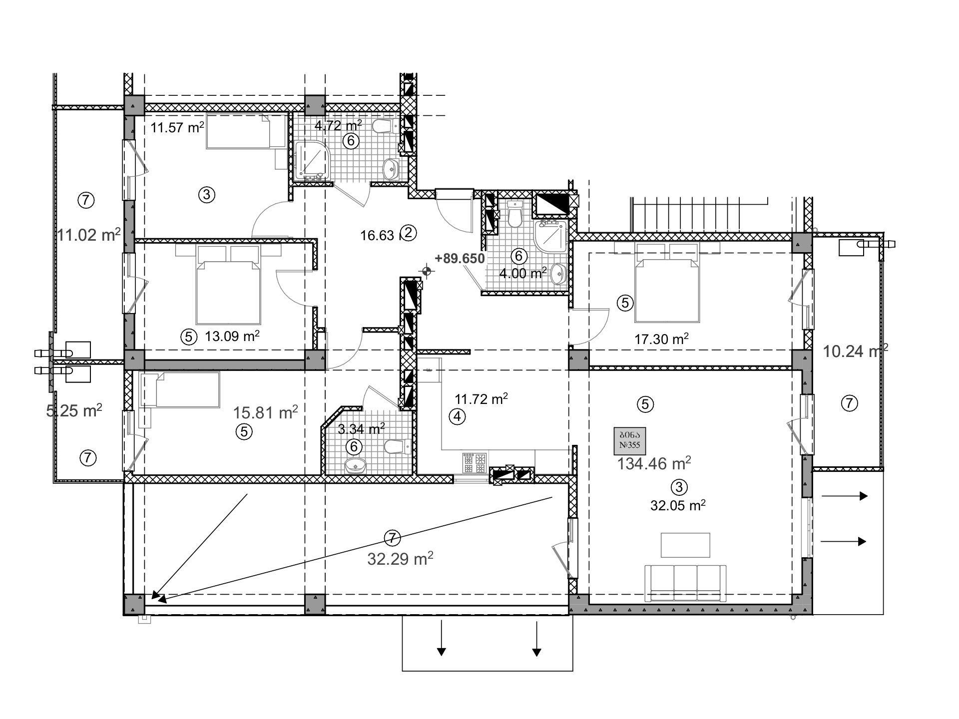
ბინა # 355
193.26 კვ.მ 1 კვ.მ / 1395 $
  • საცხოვრებელი ფართი : 134.46 კვ.მ
  • საზაფხულო ფართი : 58.80 კვ.მ

  • საძინებელი : 11.57 კვ.მ
  • საძინებელი 2 : 13.09 კვ.მ
  • საძინებელი 3 : 15.81 კვ.მ
  • ჰოლი : 16.63 კვ.მ
  • სტუდიო : 32.05 კვ.მ
  • სამზარეულო : 11.72 კვ.მ
  • სველი წერტილი : 4.72 კვ.მ
  • სველი წერტილი 2 : 4 კვ.მ
  • სველი წერტილი 3 : 3.34 კვ.მ
  • აივანი : 32.29 კვ.მ
  • აივანი 2 : 10.24 კვ.მ
  • აივანი 3 : 5.25 კვ.მ
  • აივანი 4 : 11.02 კვ.მ
  • დაფარე ბინის საფასურის 15% თვეში :
     5 777 $

269 598
  • $





შეუკვეთე ზარი



ყოველ მაცხოვრებელს ბინა ჩაბარდება "მწვანე კარკასის" სახით. რომელიც მოიცავს:

2.6693
5 777